Description
*LET AGREED* A BEAUTIFUL TWO BEDROOM SEMI-DETACHED HOUSE situated in the heart of Ashtead Village. The property has a STUNNING OPEN PLAN KITCHEN and LIVING ROOM with rooflight, downstairs cloakroom and family bathroom. Private enclosed garden and driveway with parking space. AVAILABLE early of April 2026
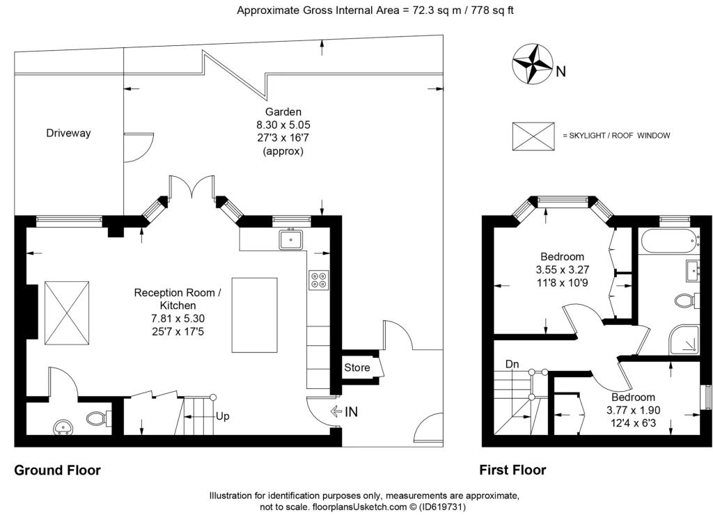
*LET AGREED* A BEAUTIFUL TWO BEDROOM SEMI-DETACHED HOUSE situated in the heart of Ashtead Village. The property has a STUNNING OPEN PLAN KITCHEN and LIVING ROOM with rooflight, downstairs cloakroom, family bathroom, private gate enclosed garden and driveway with parking space. This stunning two bedroom semi-detached house is situated in a quiet road in the heart of Ashtead Village. The subject of recent refurbishment, the property is beautifully presented throughout. The front door leads into the bright and spacious kitchen/living room which has a contemporary roof light and French doors which open into the rear garden. There is also a downstairs cloakroom. Upstairs are two bedrooms and family bathroom.
The property has its own driveway which provides parking for one car. The garden has a patio area, artificial grass and is wall and fence enclosed offering a good degree of privacy.
AVAILABLE EARLY APRIL 2026.
Council tax banding: D
EPC: 65d/87b - Ref 5716-8227-6002-0392-6602
*LET AGREED* A BEAUTIFUL TWO BEDROOM SEMI-DETACHED HOUSE situated in the heart of Ashtead Village. The property has a STUNNING OPEN PLAN KITCHEN and LIVING ROOM with rooflight, downstairs cloakroom and family bathroom. Private enclosed garden and driveway with parking space. AVAILABLE early of April 2026
*LET AGREED* A BEAUTIFUL TWO BEDROOM SEMI-DETACHED HOUSE situated in the heart of Ashtead Village. The property has a STUNNING OPEN PLAN KITCHEN and LIVING ROOM with rooflight, downstairs cloakroom, family bathroom, private gate enclosed garden and driveway with parking space. This stunning two bedroom semi-detached house is situated in a quiet road in the heart of Ashtead Village. The subject of recent refurbishment, the property is beautifully presented throughout. The front door leads into the bright and spacious kitchen/living room which has a contemporary roof light and French doors which open into the rear garden. There is also a downstairs cloakroom. Upstairs are two bedrooms and family bathroom.
The property has its own driveway which provides parking for one car. The garden has a patio area, artificial grass and is wall and fence enclosed offering a good degree of privacy.
AVAILABLE EARLY APRIL 2026.
Council tax banding: D
EPC: 65d/87b - Ref 5716-8227-6002-0392-6602
Viewing
Please contact us on 01372 271504 if you wish to arrange a viewing appointment for this property, or require further information.
Disclaimer
Jackie Quinn Estate Agents endeavour to maintain accurate depictions of properties in Virtual Tours, Floor Plans and descriptions, however, these are intended only as a guide and purchasers must satisfy themselves by personal inspection.
Share
Request aValuation
Thinking of selling or letting your home? Find out how much your home is worth with a free, no obligation valuation from Jackie Quinn Estate Agents!
