Details
Devitt Close, Ashtead, KT21 1JS
Guide price £975,000
(Sold Subject To Contract)
Description
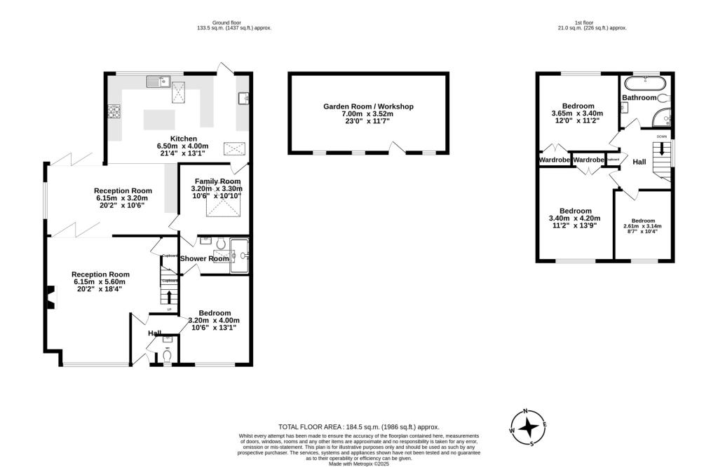
An ATTRACTIVE FOUR BEDROOM DETACHED FAMILY HOME with a fantastic KITCHEN/BREAKFAST ROOM, THREE RECEPTION ROOMS, TWO BATHROOMS and GARDEN ROOM/WORKSHOP. Located in a quiet cul-de-sac location within easy reach of Ashtead Village, train station and excellent schools.
This attractive detached family home is situated in a quiet cul-de-sac location and has been the subject of considerable extension and improvement by its current owners. Ideally placed for access to shops and amenities at both Craddocks Parade and Ashtead Village and under a mile away from Ashtead train station which provides regular services to Waterloo and Victoria, the property is also close to many excellent schools both state and independent, including Rosebery, The Greville Primary and City of London Freemens.
The property comprises, to the ground floor, three reception rooms, the open plan kitchen breakfast room with side utility area, bedroom four, bathroom, and downstairs cloakroom. Upstairs are three bedrooms and family bathroom.
The garden is laid mainly to lawn with a patio area and garden room/workshop to the rear. The driveway to the front provides parking for several cars.
An ATTRACTIVE FOUR BEDROOM DETACHED FAMILY HOME with a fantastic KITCHEN/BREAKFAST ROOM, THREE RECEPTION ROOMS, TWO BATHROOMS and GARDEN ROOM/WORKSHOP. Located in a quiet cul-de-sac location within easy reach of Ashtead Village, train station and excellent schools.
This attractive detached family home is situated in a quiet cul-de-sac location and has been the subject of considerable extension and improvement by its current owners. Ideally placed for access to shops and amenities at both Craddocks Parade and Ashtead Village and under a mile away from Ashtead train station which provides regular services to Waterloo and Victoria, the property is also close to many excellent schools both state and independent, including Rosebery, The Greville Primary and City of London Freemens.
The property comprises, to the ground floor, three reception rooms, the open plan kitchen breakfast room with side utility area, bedroom four, bathroom, and downstairs cloakroom. Upstairs are three bedrooms and family bathroom.
The garden is laid mainly to lawn with a patio area and garden room/workshop to the rear. The driveway to the front provides parking for several cars.
Viewing
Please contact us on 01372 271504 if you wish to arrange a viewing appointment for this property, or require further information.
Disclaimer
Jackie Quinn Estate Agents endeavour to maintain accurate depictions of properties in Virtual Tours, Floor Plans and descriptions, however, these are intended only as a guide and purchasers must satisfy themselves by personal inspection.
Share
Request aValuation
Thinking of selling or letting your home? Find out how much your home is worth with a free, no obligation valuation from Jackie Quinn Estate Agents!
