Details
Dorking Road, Epsom, KT18 7JU
£495,000
(Sold Subject To Contract)
Description
A beautifully presented, energy efficient, THREE BEDROOM MEWS STYLE HOUSE in a highly convenient location offering easy access to Epsom town centre and station, just 0.3 miles from Rosebery School. Set in beautifully maintained communal gardens, this spacious property benefits from photovoltaic solar panels which provide FREE RENEWABLE ELECTRICITY, and TWO PARKING SPACES. NO ONWARD CHAIN.
A beautifully presented, energy efficient, THREE BEDROOM MEWS STYLE HOUSE in a highly convenient location offering easy access to Epsom town centre and station, just 0.3 miles from Rosebery School. Set in beautifully maintained communal gardens, this spacious property benefits from photovoltaic solar panels which provide FREE RENEWABLE ELECTRICITY, and TWO PARKING SPACES. NO ONWARD CHAIN.
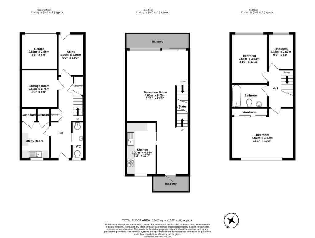
Offering a seamless blend of style, space and practicality, this deceptively spacious accommodation is arranged to suit the demands of modern living. Arranged over three floors, the layout features defined yet flowing reception areas, perfect for entertaining, socialising, or simply enjoying day-to-day family life.
The ground floor comprises the entrance hallway which welcomes you into the home and leads to a versatile study/bedroom with access to a private patio, ideal for home working or quiet retreat. Additional ground-floor highlights include a utility room with shower, a cloakroom, a versatile hobby/office space, and generous built-in storage.
On the first floor is the expansive open-plan living and dining area, which opens onto balconies at both the front and rear, offering beautiful garden views and an abundance of natural light. The bespoke, fully fitted kitchen includes a breakfast bar, creating a perfect hub for casual dining and family gatherings.
The top floor is home to the generous principal bedroom with fitted wardrobes, alongside a spacious second double bedroom and third bedroom—both south-facing and filled with natural light. A contemporary family bathroom with a power shower and access to loft storage complete the accommodation.
Externally, the property offers two parking spaces and an electric-access storage area converted from part of the former garage—ideal for bikes and garden furniture storage.
The property is equipped with photovoltaic solar panels, fully owned by the seller and under the government-s Feed-in Tariff (FIT) scheme which provide both renewable energy and an income stream for the next ten years, transferable to the new owner. Additional eco-friendly upgrades include a newly installed intelligent Vaillant boiler and a water softener system.
Residents also enjoy access to fully enclosed, meticulously maintained communal south facing gardens offering peace, privacy, and space for outdoor enjoyment.
Situated close to Epsom town centre and the open spaces of Epsom Downs, the location of the property provides a perfect balance between town and country living. Frequent rail services run from Epsom to Waterloo, Victoria and London Bridge and there is an excellent choice of schools in the area, both state and independent, including Rosebery, St Christophers and St Martins.
The property benefits from a Share of Freehold (split between eight properties)- please see associated lease/service charge and ground rent information below:-
Lease Term : 999 years from 25th March 1964
Service Charge : £95 per month
Ground Rent : £31.50 per annum paid as £15.75 six monthly
A beautifully presented, energy efficient, THREE BEDROOM MEWS STYLE HOUSE in a highly convenient location offering easy access to Epsom town centre and station, just 0.3 miles from Rosebery School. Set in beautifully maintained communal gardens, this spacious property benefits from photovoltaic solar panels which provide FREE RENEWABLE ELECTRICITY, and TWO PARKING SPACES. NO ONWARD CHAIN.
A beautifully presented, energy efficient, THREE BEDROOM MEWS STYLE HOUSE in a highly convenient location offering easy access to Epsom town centre and station, just 0.3 miles from Rosebery School. Set in beautifully maintained communal gardens, this spacious property benefits from photovoltaic solar panels which provide FREE RENEWABLE ELECTRICITY, and TWO PARKING SPACES. NO ONWARD CHAIN.
Offering a seamless blend of style, space and practicality, this deceptively spacious accommodation is arranged to suit the demands of modern living. Arranged over three floors, the layout features defined yet flowing reception areas, perfect for entertaining, socialising, or simply enjoying day-to-day family life.
The ground floor comprises the entrance hallway which welcomes you into the home and leads to a versatile study/bedroom with access to a private patio, ideal for home working or quiet retreat. Additional ground-floor highlights include a utility room with shower, a cloakroom, a versatile hobby/office space, and generous built-in storage.
On the first floor is the expansive open-plan living and dining area, which opens onto balconies at both the front and rear, offering beautiful garden views and an abundance of natural light. The bespoke, fully fitted kitchen includes a breakfast bar, creating a perfect hub for casual dining and family gatherings.
The top floor is home to the generous principal bedroom with fitted wardrobes, alongside a spacious second double bedroom and third bedroom—both south-facing and filled with natural light. A contemporary family bathroom with a power shower and access to loft storage complete the accommodation.
Externally, the property offers two parking spaces and an electric-access storage area converted from part of the former garage—ideal for bikes and garden furniture storage.
The property is equipped with photovoltaic solar panels, fully owned by the seller and under the government-s Feed-in Tariff (FIT) scheme which provide both renewable energy and an income stream for the next ten years, transferable to the new owner. Additional eco-friendly upgrades include a newly installed intelligent Vaillant boiler and a water softener system.
Residents also enjoy access to fully enclosed, meticulously maintained communal south facing gardens offering peace, privacy, and space for outdoor enjoyment.
Situated close to Epsom town centre and the open spaces of Epsom Downs, the location of the property provides a perfect balance between town and country living. Frequent rail services run from Epsom to Waterloo, Victoria and London Bridge and there is an excellent choice of schools in the area, both state and independent, including Rosebery, St Christophers and St Martins.
The property benefits from a Share of Freehold (split between eight properties)- please see associated lease/service charge and ground rent information below:-
Lease Term : 999 years from 25th March 1964
Service Charge : £95 per month
Ground Rent : £31.50 per annum paid as £15.75 six monthly
Viewing
Please contact us on 01372 271504 if you wish to arrange a viewing appointment for this property, or require further information.
Disclaimer
Jackie Quinn Estate Agents endeavour to maintain accurate depictions of properties in Virtual Tours, Floor Plans and descriptions, however, these are intended only as a guide and purchasers must satisfy themselves by personal inspection.
Share
Request aValuation
Thinking of selling or letting your home? Find out how much your home is worth with a free, no obligation valuation from Jackie Quinn Estate Agents!
