Details
Stable Close, Langley Vale, Epsom, KT18 6HH
Guide price £625,000
(Sold Subject To Contract)
Description
A DETACHED THREE BEDROOM family home situated in a quiet cul-de-sac location in Epsom's LANGLEY VALE, just minutes from Epsom Downs. The property comprises a spacious kitchen/breakfast room, large reception room, downstairs cloakroom, family bathroom and secluded rear garden. NO ONWARD CHAIN.
A detached three bedroom family home situated in a quiet cul-de-sac location in Epsoms LANGLEY VALE, just minutes from Epsom Downs. The property comprises a spacious kitchen/breakfast room, large reception room, downstairs cloakroom, family bathroom and secluded rear garden.
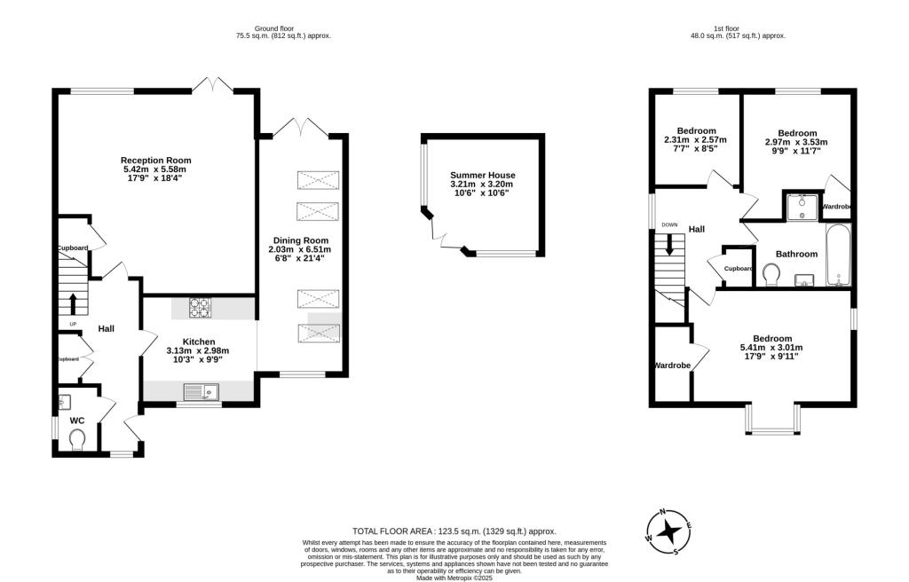
To the ground floor of the property is a large entrance hall with downstairs cloakroom and storage cupboard. The entrance hall leads to the extended, dual aspect, kitchen/breakfast room with French doors opening to the garden. A bright and spacious reception room also has French doors opening onto the garden which is laid mainly to astro turf and has a patio area and summerhouse. Upstairs are three bedrooms and a family bathroom. The driveway to the front of the property is block paved and provides parking for two cars.
There is no onward chain associated with the sale of this property.
Langley Vale has its own primary school and petrol station. Many highly regarded senior schools are within easy reach including Rosebery School for Girls in Epsom, St. Andrews Catholic School and Therfield School, both in Leatherhead. Epsom Downs, home to the famous Epsom Derby is close by and there are many lovely walking areas and bridleways, ideal for those with a love of the outdoors. Approximately two miles away lies Epsom town centre with its mainline station serving London Waterloo and Victoria in approximately forty minutes, together with a good range of shopping facilities. Ashtead Village is also approximately two miles away and offers a wide range of independent village shops and eateries.
A DETACHED THREE BEDROOM family home situated in a quiet cul-de-sac location in Epsom's LANGLEY VALE, just minutes from Epsom Downs. The property comprises a spacious kitchen/breakfast room, large reception room, downstairs cloakroom, family bathroom and secluded rear garden. NO ONWARD CHAIN.
A detached three bedroom family home situated in a quiet cul-de-sac location in Epsoms LANGLEY VALE, just minutes from Epsom Downs. The property comprises a spacious kitchen/breakfast room, large reception room, downstairs cloakroom, family bathroom and secluded rear garden.
To the ground floor of the property is a large entrance hall with downstairs cloakroom and storage cupboard. The entrance hall leads to the extended, dual aspect, kitchen/breakfast room with French doors opening to the garden. A bright and spacious reception room also has French doors opening onto the garden which is laid mainly to astro turf and has a patio area and summerhouse. Upstairs are three bedrooms and a family bathroom. The driveway to the front of the property is block paved and provides parking for two cars.
There is no onward chain associated with the sale of this property.
Langley Vale has its own primary school and petrol station. Many highly regarded senior schools are within easy reach including Rosebery School for Girls in Epsom, St. Andrews Catholic School and Therfield School, both in Leatherhead. Epsom Downs, home to the famous Epsom Derby is close by and there are many lovely walking areas and bridleways, ideal for those with a love of the outdoors. Approximately two miles away lies Epsom town centre with its mainline station serving London Waterloo and Victoria in approximately forty minutes, together with a good range of shopping facilities. Ashtead Village is also approximately two miles away and offers a wide range of independent village shops and eateries.
Viewing
Please contact us on 01372 271504 if you wish to arrange a viewing appointment for this property, or require further information.
Disclaimer
Jackie Quinn Estate Agents endeavour to maintain accurate depictions of properties in Virtual Tours, Floor Plans and descriptions, however, these are intended only as a guide and purchasers must satisfy themselves by personal inspection.
Share
Request aValuation
Thinking of selling or letting your home? Find out how much your home is worth with a free, no obligation valuation from Jackie Quinn Estate Agents!
